Конкурсная работа Эфендиева Резуана. Дом на берегу моря. Аушигер, Россия.

Студент 4 курса Кабардино-Балкарского Государственного Университета ИТФ ПГС Эфендиев Резуан стал нашим 30-ым участником. Бороться за главный приз будет проект дома, рассчитанного на 5 человек. Проголосовать за работу Резуана можно уже сейчас в социальных сетях.

Номинация: Архитектура

Дом на берегу моря

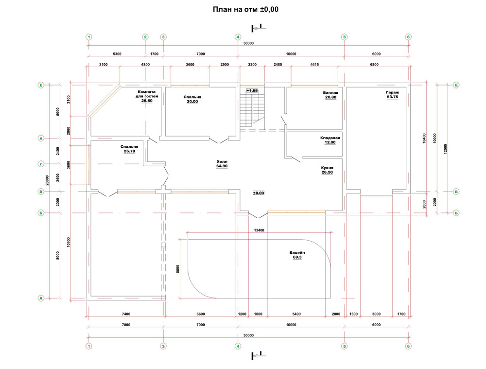
Проект «Дом на берегу моря» является частным домом для проживание семьи в 5 человек имеет большую террасу для отдыха и бассейн на улице.

Дом на берегу моря

Проект здания выполнен в стиле hi-tech, что в последнее время стало распространенным, особенно в таких проектах, находящихся на берегах морей и на обрывах.

Дом на берегу моря

Дом имеет ванную комнату с большим остеклением на всю высоту стены, как видно на рисунке.

Дом на берегу моря

Находясь в ванной, хозяин дома принимает ванну, любуясь прекрасным видом из окна.

Дом на берегу моря

У дома имеется терраса на втором этаже, где вся семья может пить кофе с гостями в диване и любоваться красивым закатом.

Дом на берегу моря

Дом на берегу моря

Дом на берегу моря

Дом на берегу моря

Дом на берегу моря

Дом на берегу моря

Дом на берегу моря

Дом на берегу моря

О себе:

Эфендиев Резуан Зумадинович

Должность: Студент 4 курса Кабардино-Балкарского Государственного Университета ИТФ ПГС

Адрес: КБР, с. Аушигер

Контактные телефоны: 8 938 914 7666

E-mail: Rezuan07@bk.ru

Работа Эфендиева Резуана опубликована

здесь Группа Архиновостей ВКонтакте, здесь Страница Архиновостей в Facebook и здесь Страница Архиновостей на Google+.

Источник: www.arhinovosti.ru.





1 комментарий

  1. nazim (08.09.2012 22:42) (Ответить)
    nazim

    Понравилось только пылающее небо…

Оставить комментарий

Для отправки комментария Вы должны авторизоваться.
Войти на сайт



Рубрика "Архитектура" — новые публикации: