Конкурсная работа Горобец Юлии. Интерьер салона мебели из нестандартных материалов. Екатеринбург, Россия.
Горобец Юлия, участница под №24, выпускница Уральской государственной архитектурно-художественной академии, представила на Архиконкурс 2012 проектную работу, в основе которой лежит концептуальное решение экологической проблемы с использованием эстетических приемов. Главная идея проекта заключается в создании стильного и современного интерьера салона мебели из нестандартных материалов, таких как мусор. Желающие подержать столь необычную работу могут проголосовать за нее уже сейчас в социальных сетях.
Номинация: Дизайн интерьера
Город – слишком сложный организм для того, чтобы давать ему однозначную оценку. Нередко случается так, что уродливые трущобы, пустынные улицы, заброшенные дома, монотонные городские ландшафты и банальная застройка спальных районов необъяснимым образом приобретают эстетическую ценность в глазах художников или случайно оказавшегося в этих неприглядных местах прохожего.
Здесь речь пойдет лишь об одной из «урбанистических» тем – о мусоре, который нередко становится важной составляющей городской среды. Но даже если не углубляться в рассмотрение семиотической проблемы мусора как «знаковой системы девальвированных культурных ценностей», о чем пишет известный отечественный исследователь постмодернизма Илья Ильин, можно говорить о противоречащей здравому смыслу живописности и привлекательности, которой иногда обладают отбросы. Сложность восприятия мусора состоит именно в его неоднозначности – ходить по грязной улице неприятно, но и совершенно стерильные, вычищенные, лишенные следов человеческого присутствия улицы настораживают.
В данной работе рассматривается функциональный интерьер салона мебели из нестандартных материалов, задачей которого является достойное обрамление представленных экземпляров мебели с возможностью мобильности инсталляций из выставочных образцов. Задачей является создание атмосферы стильного и современного помещения, имеющего в основе подоплеку не только эстетическое представление , но и экологическую основу, а также с целью поиска новых идей в области вторичной переработки мусора молодыми дизайнерами. Они могут предложить предметы интерьера, мебель, изготовленные из мусора, вернуть ненужные вещи к жизни, дать продукту новый экономический виток.
Важно отметить, что тема мусора, отбросов в искусстве далеко не всегда связана только с желанием эпатировать зрителя. Обращение к отходам цивилизации может оказаться стремлением найти красоту в любых проявлениях жизни, даже там, где видеть красоту не принято. «Искусство мусора» может демонстрировать реакцию на эти глобальные проблемы урбанистической цивилизации с помощью иронического комментария к ним. Так или иначе, обращение к подобным элементам городской среды помогает и художникам, и самим горожанам осознать город как коллективное произведение искусства, к которому причастны все в нем живущие.
| Тип комнат | Метраж | Плюсы | Минусы |
| Вестибюль | 13,5 | инсоляция | запасной выход |
| Зал 1 | 91,2 | большая площадь, вентиляционная шахта, не загромождающая полезную площадь зала 1 | Необходимость свободного прохода к лифту – для перепланировки, но исходная планировка обеспечивает дополнительную проходимость потенциальных покупателей |
| Лифт | 10,5 | вместительность | |
| Зал 2 | 86,0 | инсоляция | Несущие стены, наличие лестничного проема |
| Лестничный проем | 6,8+9,7 | Узость для транспортировки громоздкой мебели в подсобное помещение | |
| Зал 3 | 31,9 | площадь | Цокольный этаж-нет инсоляции, перегородки |
| Холл | 11,7 | ||
| Зал 4 | 20,7 |
Расположение: рассматриваемые площади находятся в здании ТЦ, в центре города, фасад выходит на проезжую часть.
Этажность: 1 этаж – 208 кв.м, цокольный этаж – 74 кв.м.
Конструкция: кирпичное здание, в плане пересеченное пополам несущими стенами, планировка входной части не функциональна.
*-Переработка (другие термины: вторичная переработка, рециклинг отходов (англ. recycling), рециклирование и утилизация отходов) — повторное использование или возвращение в оборот отходов производства или мусора. Наиболее распространена вторичная, третичная и т. д. переработка в том или ином масштабе таких материалов, как стекло, бумага, алюминий, асфальт, железо, ткани и различные виды пластика.
Во-первых, ресурсы многих материалов на Земле ограничены и не могут быть восполнены в сроки, сопоставимые со временем существования человеческой цивилизации. Во-вторых, попав в окружающую среду, материалы обычно становятся загрязнителями. В-третьих, отходы и закончившие свой жизненный цикл изделия часто (но не всегда) являются более дешевым источником многих веществ и материалов, чем источники природные.
В данном случае, для вторичного использования могут быть выбраны такие материалы, как:
1)Макулатура (бумага; картон; газеты; текстиль; TetraPak);
2) Стекло( стеклотара, стеклобой);
3) Металлолом (чёрный, цветной, драгоценный)
4)Электроника (изделия, платы, аккумуляторы, провод);
5)Пластмассы (ПЭТ, ПВХ, ПВД, АБС, ПС, ПНД);
6)Резина (шины, резина);
7)Древесина (сучья, стружка, листья);
8)Строительные (кирпич, бетон)
Постоянные сотрудники:
-директор,
-администратор (2 человека посменно),
-гид,
-бармены (человека посменно),
-официант,
-уборщица,
-охранник (2 человека посменно).
Количество посетителей:
Выставочный зал: минимально 25 человек в раз
Бар: минимально-12 посадочных мест.
Общее количество: от 40 человек в раз
Задание на проектирование
а) перепланировка фасада для создания полноценного проходного помещения при парадном входе в здание;
б) создание входной группы;
в) презентационный и функциональный вестибюль с гардеробом;
г) организация комнаты переговоров для оформления и заключения сделок по купле-продаже выставочных экземпляров мебели;
д) организация санузла;
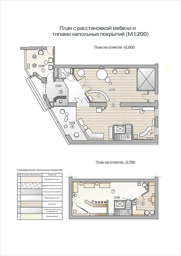
е) организация пространства залов 1 и 2, как основных для мобильных выставочных зон и инсталляций;
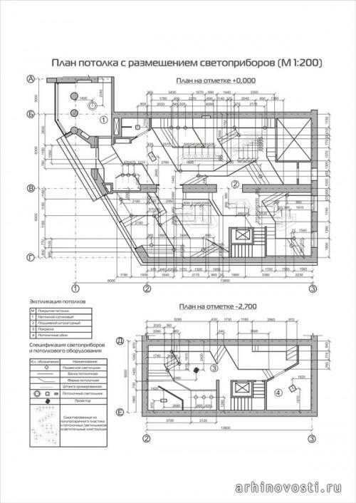
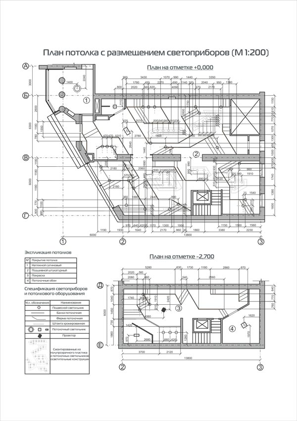
ж) конструктивное решение потолка для создания мобильности в размещении светоприборов и подвесных инсталляций;
з) организация подсобного помещения для сотрудников (гардероб, зона приема пищи) и хранения не больших выставочных образцов.
и) стилевое решение интерьера- функционализм с элементами поп-арта.
О себе:
Горобец Юлия
тел. 8 (982) 630 10-08
Работа Горобец Юлии опубликована
Источник: www.arhinovosti.ru.


















Я, конечно, понимаю, что мебель выполнена из отходов. Но всё же она должна выглядеть эстетично и привлекательно. В этом проекте, конечно, есть кое-что интересное. Но в основной своей массе мне не очень понравилось, к сожалению.
Мне ни к чему одические рати
И прелесть элегических затей.
По мне, в стихах все быть должно некстати,
Не так, как у людей.
Когда б вы знали, из какого сора
Растут стихи, не ведая стыда,
Как желтый одуванчик у забора,
Как лопухи и лебеда.
Сердитый окрик, дегтя запах свежий,
Таинственная плесень на стене…
И стих уже звучит, задорен, цежен,
На радость вам и мне.
Ахматова