Полосатый детский сад от Ignacio Quemada Arquitectos. Сараус, Испания.

Небольшому городку Сараус на севере Испании потребовалось расширить детский сад. В  результате городские власти приняли решение о строительстве нового дополнительного  здания совсем недалеко от уже существующего. Через год реализация проекта  архитектурной фирмы Ignacio Quemada Arquitectos была полностью окончена.

Полосатый детский сад от Ignacio Quemada Arquitectos. Сараус, Испания.

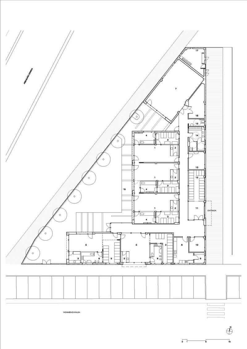
Новый детский сад расположился на участке в форме прямоугольного треугольника.

Полосатый детский сад от Ignacio Quemada Arquitectos. Сараус, Испания.

Площадь объекта составила почти 700 квадратных метров.

Полосатый детский сад от Ignacio Quemada Arquitectos. Сараус, Испания.

Старое здание детского сада было почти полностью серым. Поэтому в новое строение архитекторы решили непременно добавить ярких красок.

Полосатый детский сад от Ignacio Quemada Arquitectos. Сараус, Испания.

Фасад здания облицован узкими вертикальными панелями из алюминия. Эти панели шести цветов (цветные чередуются с белыми) напоминают карандаши, выстроившиеся в ряд вокруг детского сада.

Полосатый детский сад от Ignacio Quemada Arquitectos. Сараус, Испания.

Часть игровой площадки также приобрела полосатость, только в меньшей степени.

Полосатый детский сад от Ignacio Quemada Arquitectos. Сараус, Испания.

На строительство детского сада потребовалось 765 794 евро.

Полосатый детский сад от Ignacio Quemada Arquitectos. Сараус, Испания.

В статье использованы фотографии от Alejo Bagué.

Источник: www.arhinovosti.ru.





Комментариев нет

Оставить комментарий

Для отправки комментария Вы должны авторизоваться.
Войти на сайт