Детский университет от Paredes Pedrosa. Гандиа, Испания.
Детский университет в городе Гандиа, провинция Валенсия, Испания, является не просто традиционным детским садом. Это экспериментальная инициатива, предложенная городскими властями для разностороннего развития детей. Задумка была реализована по проекту мадридской архитектурной студии Paredes Pedrosa.
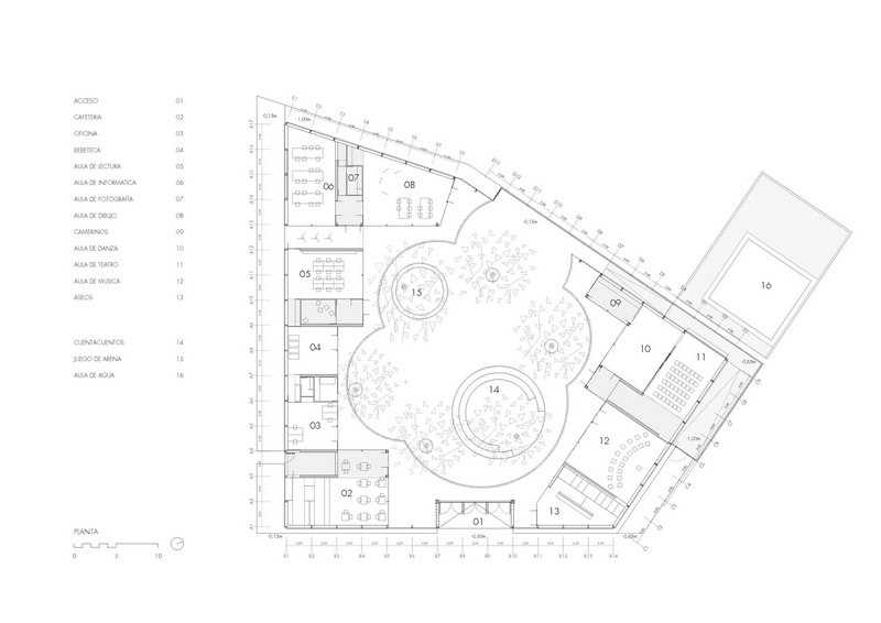
Детское учебное заведение представляет собой комплекс специализированных классов и мастерских, предназначенных для развития творческих способностей у детей вне школьной программы, в естественной и непринуждённой атмосфере.
Все помещения «университета» связаны с открытым внутренним двориком. Именно в этом месте происходит все самые интересные занятия.
В центральном дворике растут шесть больших деревьев белой шелковицы, которые дают приятную тень летом.
Общая площадь объекта составляет 1075 квадратных метров.
Фасад и крыша зданий облицованы керамической плиткой, которая отражает яркий солнечный свет и защищает от высоких температур внутри здания.
В статье использованы фотографии от Roland Halbe, Luis Asín.
Источник: www.arhinovosti.ru.








