Творческий блок для жизни и работы
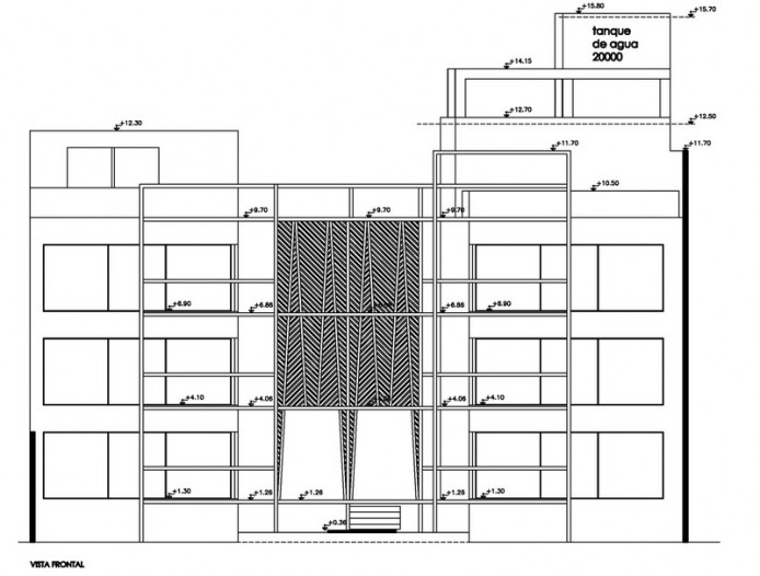
На одной из улиц крупного аргентинского города Кордова в центре одного из многоквартирных домов архитектор Пабло Деллаторре (Pablo Dellatorre) спроектировал жилой блок, совсем не похожий на остальную часть дома. Стильный творческий проект получил название «City Block Center». Скоро узнаем, кто в том блоке живёт и что там интересного.
В центральной части этого дома живут молодые художники, архитекторы, актёры, дизайнеры, фотографы, музыканты и писатели.
Для всей этой творческой молодёжи были продуманы 12 студий площадью около 42 квадратных метров.
У всех жителей есть и общее пространство: внутренний дворик и терраса площадью 10 квадратных метров, которая находится на крыше здания.
Небольшую площадь студий компенсируют террасы, имеющиеся в каждой из квартир.
Снаружи здание украшает и выделяет среди других строений деревянная «одежда», которая помогает регулировать количество света внутри помещений, а также говорит о желании хозяев какой-либо из студий привлекать к себе меньше внимания, если, например, раздвижные деревянные ставни закрыты.
В статье использованы фотографии от Gonzalo Viramonte.
Источник: www.arhinovosti.ru.










