Современная иранская вилла
Недалеко от иранского города Саве была построена эта белая вилла, в проекте которой традиции иранской архитектуры сплелись с эффективными современными решениями. Спроектировали дом специалисты из архитектурной компании Karand Group.
Заказчиком данного проекта является журналист, который хотел получить дом для отдыха неподалёку от семейной фермы.
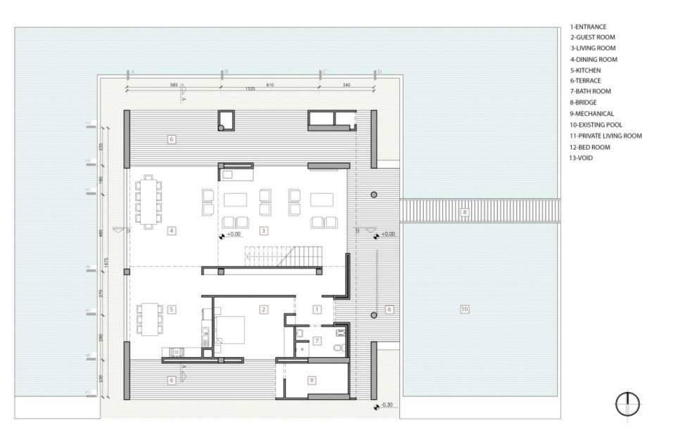
Вокруг дома был сформирован бассейн, который помогает поддерживать внутри здания комфортную температуру. Также благодаря воде в окна дома попадает дополнительный отраженный солнечный свет.
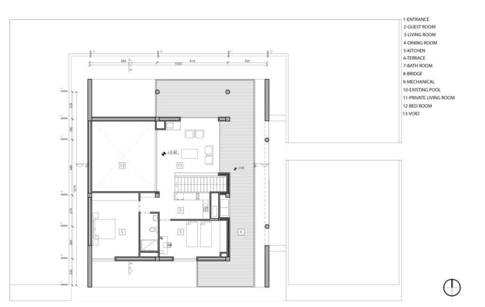
Всего в доме 2 этажа. На первом из них расположены общие зоны: кухня, гостиная и гостевая комната. На втором этаже находятся спальни и личная гостиная.
В статье использованы фотографии от Kaveh Seyed Ahmadian.
Источник: www.arhinovosti.ru.










