В «зелёном» доме живут кино и театр
В китайском городе Чанчжоу появился крупный центр, посвящённый театру, кино и другим видам искусства. Современное здание с разносторонней культурной программой внутри было спроектировано специалистами из архитектурной компании studio505.
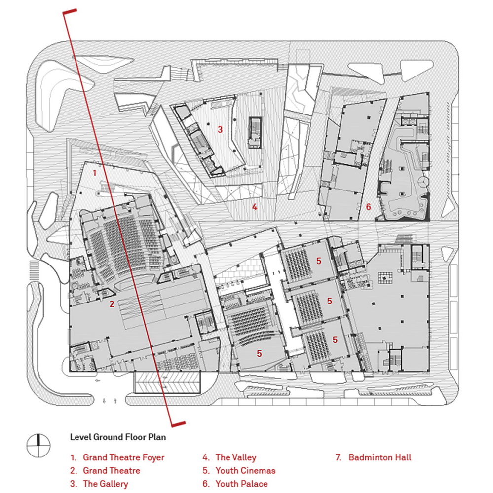
Во впечатляющем здании разместились 4 кинозала, театральный зал на 1000 мест, подходящий как для традиционной Пекинской оперы, так и для новейших цифровых шоу, 5 этажей галереи искусств, дворец молодёжи (образовательный центр) на 4000 учеников, спортивные залы, магазинчики, кафе.
В данном проекте архитекторы применили множество «зелёных» технологий: крыша здания была в прямом смысле сделана зелёной, объект может похвастаться различными системами аккумуляции солнечной энергии, светодиодным освещением и эффективными системами управления водными ресурсами.
Проект получил максимальные 3 звезды по китайскому экологическому рейтингу, что соответствует золотому статусу по системе оценки экологичности зданий Leed.
В статье использованы фотографии от John Gollings.
Источник: www.arhinovosti.ru.












