Дворец школьников в Астане
А у школьников Астаны, Казахстан, есть собственный дворец! Так и называется «Дворец школьников». Этот грандиозный молодёжный центр, под одной крышей которого были собраны разнообразные спортивные, образовательные и развлекательные программы, был спроектирован специалистами из архитектурной компании Studio 44 Architects.
В данном проекте произошло эффектное слияние местных традиций строительства жилых зданий и характеристик супрематических композиций.
Важнейшим элементом казахской юрты является шанырак (деревянная «корона» в центре купола юрты, расположенная над очагом). В данном проекте «шаныраком» стал цилиндр высотой 8 метров и диаметром 156 метров.
В этом гигантском диске предусмотрены крупные световые люки, через которые в центральный атриум попадает солнечный свет.
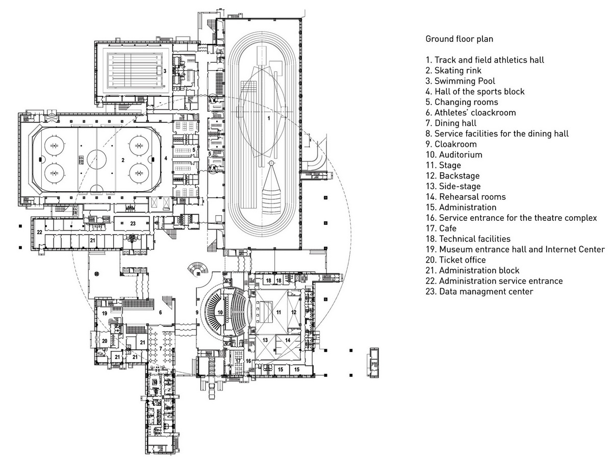
Круглой «короной» были прикрыты прямоугольные объёмы, в каждом из которых находятся определённые программы: ледовая арена, музей, театр и так далее.
Дворец школьников в Астане был украшен национальными казахскими орнаментами. Крыша его круглого элемента была сделана «зелёной»: по ней можно гулять и любоваться видами на город.
В статье использованы фотографии от Маргариты Явейн.
Источник: www.arhinovosti.ru.
















