Бокс в массы
В одном из бедных районов мексиканского города Чиуауа появился муниципальный спортивный зал для боксёров. Благодаря стараниям специалистов из архитектурной компании Urbánika жители района получили возможность на новом уровне заниматься спортом. Тренировки, которые раньше проходили в гаражах и во дворах, плавно перекочевали в специально оборудованное для этого пространство.
Спортивный зал был одет в кирпичную оболочку. Каждый из кирпичей был повёрнут на 7 градусов по отношению к осевой линии, благодаря чему «одежда» здания стала напоминать узорчатую ткань.
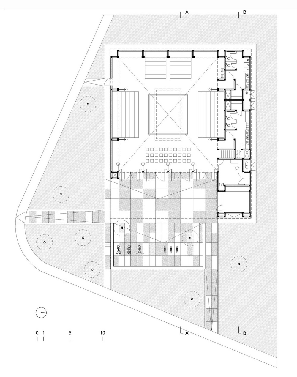
К зданию примыкает небольшая площадь, которая при открытых дверях становится продолжением зала. Местные жители могут использовать её для проведения каких-либо мероприятий.
В здании предусмотрено место под небольшой магазин, который призван финансово поддержать тренеров, которые бесплатно проводят тренировки.
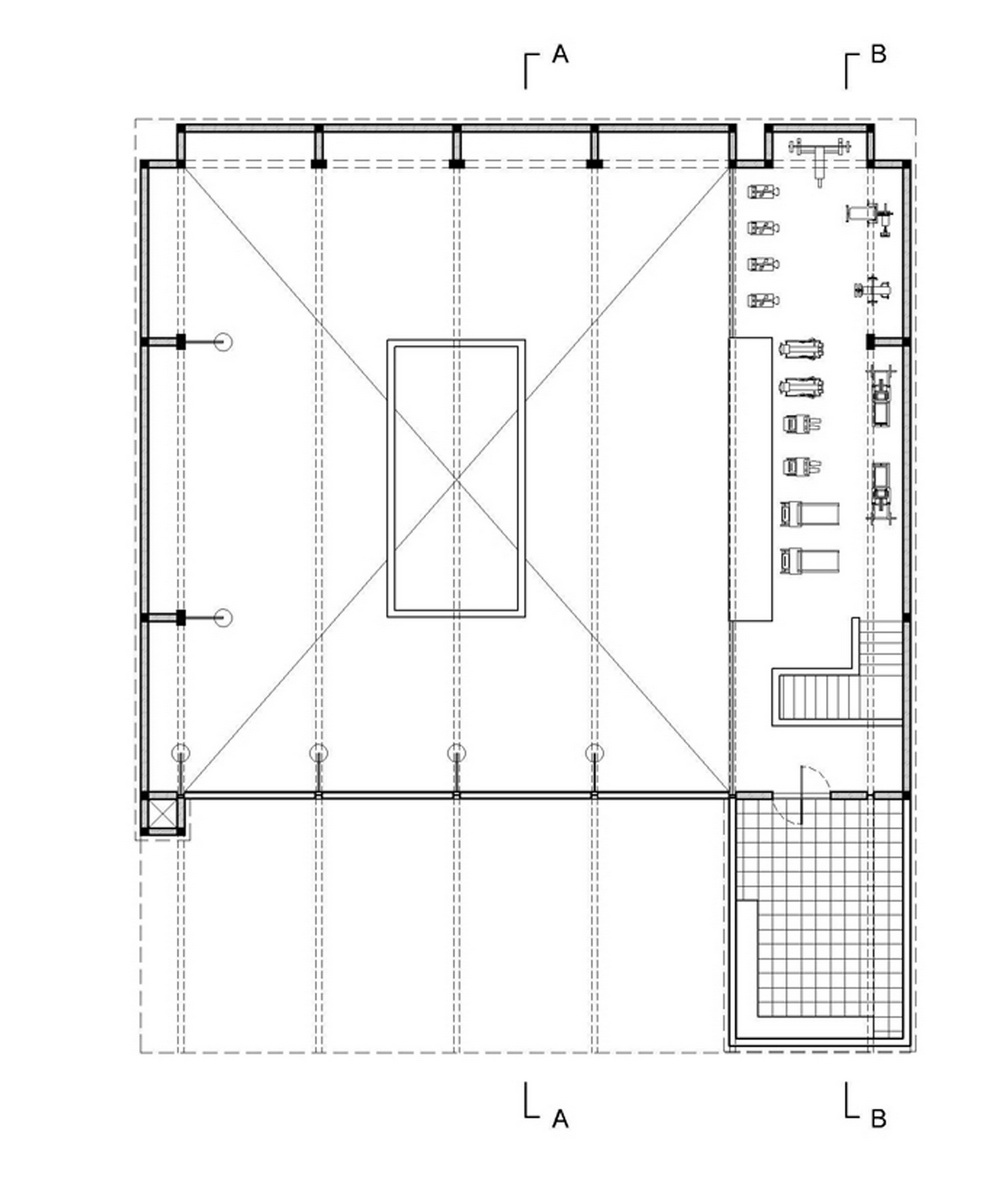
На первом этаже спортивного объекта расположен боксёрский ринг. Место на втором этаже было отдано под тренажерный зал и террасу для индивидуальных тренировок.
В статье использованы фотографии от Guadalupe Campos.
Источник: www.arhinovosti.ru.









