Пространство и свет в берлинском таунхаусе
Такое чувство, что интерьер этого таунхауса в Берлине, Германия, состоит из полок и лестниц. По сути так оно и есть, и стоит отметить, что все эти полки и лестницы помогли создать уютный и функциональный интерьер, не перегрузив его. Проект одноквартирного дома разработали архитекторы из студии XTH-berlin.
Основными материалами, использованными в работе, являются декоративный бетон, клеёная древесина из ели, сосновая древесина, ну и, конечно, не были забыты металл и стекло.
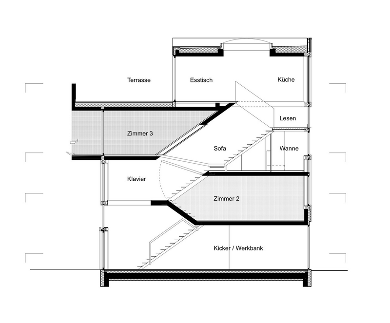
Дом построен на трапециевидном участке площадью 118 квадратных метров. Общая площадь жилья составляет 230 квадратных метров.
Попасть в дом можно с двух сторон. Если зайти с северной части дома, то попадёшь в зону с гардеробной, мастерской и ванной комнатой. Если с южной – то окажешься сразу в жилой зоне. Тут можно оставить велосипед, поиграть в настольный футбол.
Поднимаясь на верхние этажи, вы проходите мимо спален, ванной комнаты, отделённой занавеской, «музыкальной» комнаты с пианино и гостиной пока не попадаете на верхний уровень, где находятся столовая и открытая терраса.
Благодаря большим окнам и световому колодцу в потолке, солнечный свет проникает в самую глубь дома.
В статье использованы фотографии от Anja Büchner.
Источник: www.arhinovosti.ru.










