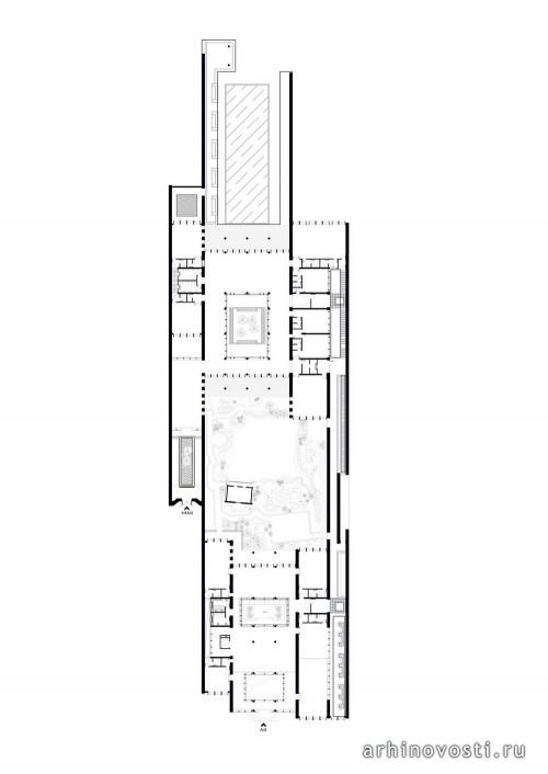
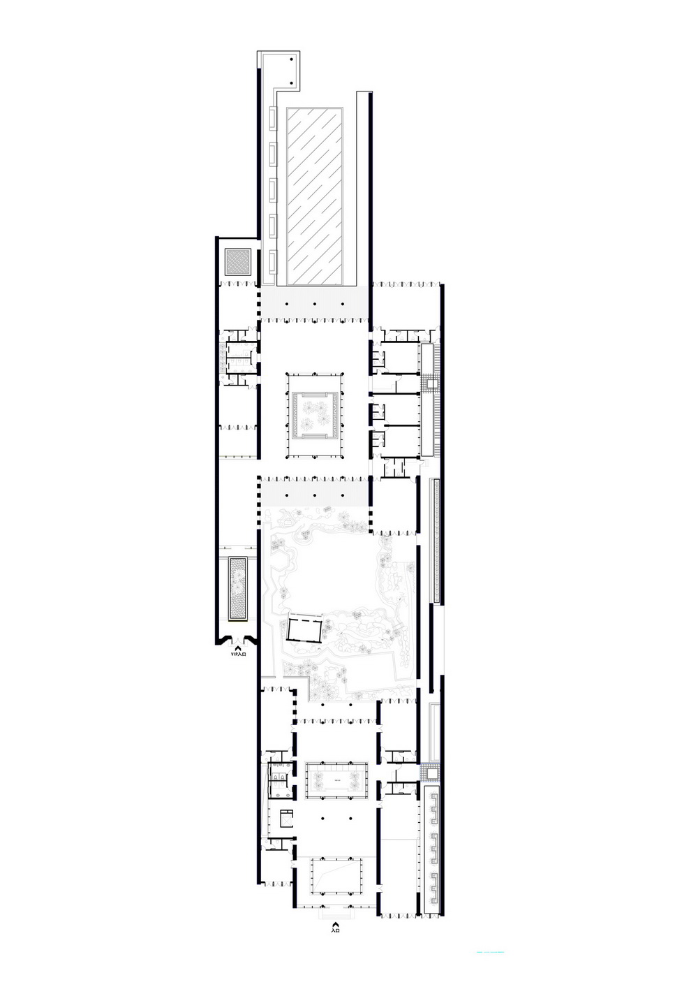
Комплекс «Lanxi» от Archi Union Architects. Чэнду, Китай.
Это замечательное здание с большим внутренним двориком расположено в одном из парков города Чэнду, Китай. Внутри него находится ресторан и частный клуб. Данный объект, концептуальной основой для которого стала традиционная китайская архитектура, был спроектирован специалистами из компании Archi Union Architects и построен в 2011 году.
Силуэт крыши здания вызывает ассоциации с горами и реками. Его форма является производной от традиционной формы крыш китайских домов.
Волнистая стена – это созданная компьютером интерпретация природы воды. Архитекторы разработали алгоритм, который моделирует поведение воды.
Затем был взят один из моментов существования этой жидкости, который в итоге лёг в основу архитектурной композиции.
Основным материалом для строительства здания был выбран традиционный голубой кирпич.
Чтобы реализовать проект архитекторы разработали пять типов соединения кирпичей. Комплекс был построен за три месяца.
В результате проделанной работы архитекторам удалось сделать убедительные «водные» стены.
В статье использованы фотографии от SHEN Zhonghai.
Источник: www.arhinovosti.ru.








