Центр медицинской помощи «CEDT Daimiel» от Estudio Entresitio. Даймьель, Испания.
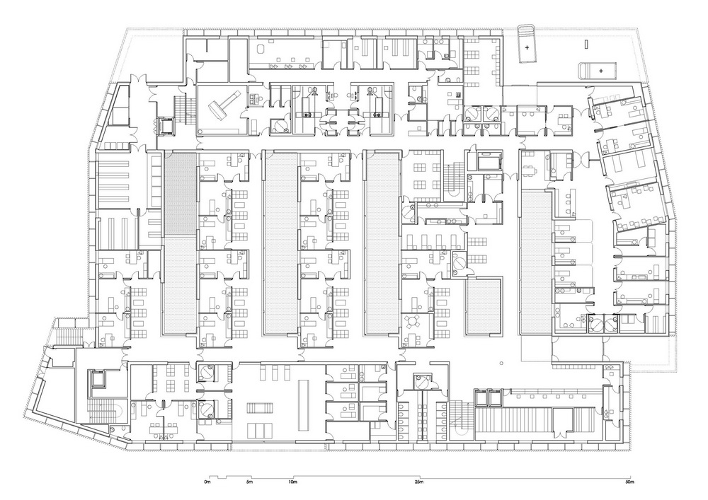
В испанском городе Даймьель расположен центр медицинской помощи «CEDT Daimiel», здание для которого было спроектировано специалистами из архитектурной компании Estudio Entresitio. В процессе создания данного объекта архитекторы уделили особое внимание удобству планировки, а соответственно и созданию эффективной системы перемещения медицинского персонала и пациентов внутри здания, которая позволила бы не теряли драгоценное время в хитросплетениях коридоров и проходов.
На первом этаже размещены кабинеты для оказания неотложной помощи и общие консультации.
На втором этаже находятся кабинеты специалистов узкого профиля, хирургический блок и комнаты, в которых работники медицинского центра при необходимости могут остаться на ночь.
Внутри здания расположены пять прямоугольных внутренних двориков, вдоль которых идут параллельные коридоры, по одной стороне каждого из которых находятся кабинеты.
Что касается интерьера, архитекторы постарались гармонично внедрить это общественное здание в ткань жилого района.
Внешней кожей здания, за которой скрываются стены красноватого цвета и окна, стала решетка, собранная из перфорированных оцинкованных пластин.
В статье использованы фотографии от Raúl Belinchón.
Источник: www.arhinovosti.ru.







