Конкурсная работа Астапченко Егора. Дизайн-концепция культурного центра на территории парка “Динамо”. Воронеж, Россия.
203-участник Архиконкурса 2012, Егор Астапченко, выпускник 2012 года Воронежского Государственного Педагогического университета факультета искусств и художественного образования, прислал на почту нашего журнала дипломный проект, посвященный разработке дизайн – концепции культурного центра на территории парка “Динамо” в городе Воронеже. Проголосовать за работу Егора вы можете на сайте голосования.
Номинация: Архитектура
Цели и актуальность темы дипломного проекта.
При работе над проектом была поставлена цель создать многофункциональный комплекс, который станет одним из мест проведения культурного досуга жителей Воронежа. В нашем городе всё больше ощущается нехватка мест для проведения культурных мероприятий (художественных выставок, кинопоказов, мастер-классов и т.д.). В связи с этим тема проекта достаточно актуальна и востребована.
Кроме того, одной из целей, поставленных при проектировании, было привлечь внимание общества к реконструкции городских парков. Культурный центр предлагается разместить непосредственно на входе в парк “Динамо”, он может стать своеобразной визитной карточкой этого места. Активное благоустройство входной части парка повлечёт за собой реконструкцию и развитие остальной его территории.
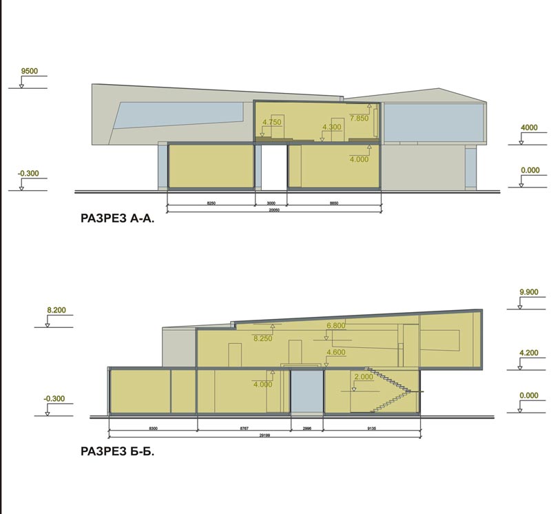
Проект включает в себя разработку двухэтажного павильона, состоящего из двух выставочных залов, кинотеатра, кафе и книжного магазина, благоустройство прилегающей территории. Общая площадь здания –758 кв.м (первый этаж – 322 кв.м , второй этаж – 536 кв. м). Площадь разрабатываемой территории – около 8 тыс.кв.м.
Культурно-развлекательный комплекс предполагается разместить на территории входа в парк «Динамо» в городе Воронеже. Месторасположение проекта выбрано неслучайно. Располагаясь в зоне входа в парк «Динамо», культурно-развлекательный центр соединяет индустриальную и лесопарковую часть города, являясь «воротами» в парк.
Парк «Динамо», располагающейся на месте важной транспортной развязки, соединяющей три разных районов города – Северный, Железнодорожный и Центральный. Районы активно развиваются и застраиваются, захватывая понемногу территорию парка. Удобное расположе¬ние ЦПКиО в структуре города, его транспортная доступность и общеиз-вестность сохраняют за ним ведущую роль в системе рекреационно-досуговых территорий города, позицию центра в потенциальной схеме ор¬ганизации сферы досуга воронежцев.
Воронежский парк «Динамо» основан в 1851 году как «Воронежский древес¬ный питомник», предназначенный для выращивания древесных пород для всей Центральной России. ЦПКиО несет на себе следы различных эпох истории города, является своеобразным хранителем укладов и образов жизни воронежцев. Парк был любим многими представителями творческой интеллигенции города, а в го¬ды советской власти – привлекательным местом проведения организован¬ного досуга широких масс населения. Парк хранит на себе следы жестоких боев за Воронеж, прошедших и по его территории.
Сейчас прославленная парковая зона практически уничтожена. С приходом упадка и разрухи парк «Динамо» потерял эстетическую привлекательность, а вместе с ней и большую часть посетителей.
Изменить ситуацию к лучшему может создание нового образа парка, частью которого является Культурно-развлекательный центр, представленный в проекте.
Дизайн-проект культурного центра представляет собой многофункциональный павильон. Проектирование и строительство подобных конструкций является ведущей тенденцией в современной архитектуре. Подобный камерный жанр стал возможностью для самореализации множества молодых и именитых архитекторов. Именно такие конструкции позволяют проявить особенности места, исследовать городскую среду. А также формируют более живописное пространство вокруг и, что не менее важно, меняют общественное мнение.
Образное решение разрабатываемого проекта.
Основой для рождения общего архитектурного образа и объемно-пространственного решения здания послужили работы выдающихся представителей русского авангарда начала ХХ века В. Татлина и А. Родченко. Зрительный образ дорожной развязки, с ее дугообразными линиями, которая проходит непосредственно над входом в парк, в сочетании с композиционными приёмами русских авангардистов вдохновили на создание радиальной планировки здания и прилегающей территории.
Первоначально проект задумывался как многофункциональный павильон, выполненный в стиле хай-тек, но по мере разработки объемно-пространственного решения здания, экстерьеров и интерьеров, анализа прилегающей территории, истории парка стало ясно, что в рамках одно стиля создание цельного образа невозможно. В XXI веке мы находимся в ситуации постмодерна, когда смешение стилей, заимствование является характерной чертой. Постмодерн стал самым точным и многогранным отражением современных настроений общества (поиск новых идеалов, ирония, стремление к индивидуальности, отход от массовой продукции и т.д.). В архитектуре и интерьере данное стилистическое направление позволило найти новые средства выразительности и особое видение организуемого пространства. Конечно же, в первую очередь сформировалось определенное отношение к традициям прошлого, которые были обширны и многочисленны.\В планировке здания, некоторых элементах интерьера и экстерьера использовались черты конструктивизма.
Эстетика конструктивизма в наше время стала уже практически классикой, одной из основ всей современной архитектуры. Её переосмысление и переработка в современном контексте смешения стилей, на мой взгляд, очень актуально.
Территория.
Культурный центр расположен в низине на ровной площадке перед входом парковую зону. С западной стороны начинается центральная аллея парка, с северной стороны -лесной массив, за которым видны высотные здания микрорайона Берёзовая Роща. С юго-восточной стороны над лесными посадками проходит транспортная магистраль на высоких опорах, под которой находится основной спуск в парк с улицы Ленина. С южной стороны к площадке вокруг культурного центра примыкает ещё одна пешеходная дорожка, которая связвает парк с частным сектором , улицами Рабочего Класса, Бурденко и др.
Планировка прилегающей к культурно-развлекательному центру территории с прогулочными дорожками, водоёмами и газонами поддерживает общую радиальную композицию проекта. Также важным аспектом при разработки планировки было связать композицию дорожек с формой здания и дугообразными линиями транспортной развязки, создав тем самым единый архитектурно-градостроительный всей лесопарковой зоны района.
Пешеходный спуск в парк переходит в системы прогулочных дорожек, расходящихся радиально вокруг здания, повторяя его композиционный ритм, и завершается центральной аллей парка. Газоны между дорожками чередуются с декоративными водоемами. По всей территории вдоль дорожек расположены лавочки для отдыха посетителей. На газонах высажены несколько небольших групп кустарников. Также предполагается освещение территории в вечернее время, подсветка растений и здания культурного центра. Для этой цели использованы прожекторы и светильники, вмонтированные в мощение дорожек, уличные фонари.
Сквозь здание культурно-развлекательного центра проходит пешеходная дорожка, ведущая к круглой площадке, которая может использоваться в качестве летней сцены. Целью такой планировки было заинтересовать проходящих мимо культурного центра посетителей парка происходящим внутри (выставки, кино-показы, мастер-классы и т.д.).
С восточной стороны территория ограниченна автомобильной стоянкой, которая соединяется с парком двумя автомобильными дорожками, обеспечивая тем самым возможность подъезда служебных автомобилей к культурному центру. Также эти дорожки могут использоваться при экстренных ситуациях для проезда в парк пожарных, спасателей или скорой помощи.
Объёмно-планировочное решение здания.
Основой планировочного решения проекта стала идея свободного передвижения посетителей из одной зоны в другу. Всё здание состоит из четырёх отдельных отсеков, соединённых между собой переходами и лестницами.
Первый этаж представляет из себя два отдельных павильона (выставочный зал и кафе), перейти из одного в другой можно через фойе кинозала на втором этаже. Боковые стены в плане первого этажа выгнуты по дугам и практически полностью остеклены. Каждый отсек первого этажа имеет свой собственный вход. Кроме того, в непосредственной близости от каждого входа расположены лестницы. Благодаря этому посетитель может сразу зайти в интересующее его помещение, минуя остальные. Например, подняться сразу в кинозал, минуя кафе и выставочные залы. Между двумя отсеками первого этажа проходит прогулочная дорожка к летней сцене. Это позволяет визуально объединить пространство интерьеров и экстерьера. Помимо выставочного зала и кафе на первом этаже расположены санузлы и подсобные помещения, имеющие свои служебные выходы с заднего фасада здания. Служебные помещения соединены с основными залами, в случае экстренных ситуаций через них может проводиться эвакуация посетителей.
Второй этаж также состоит из двух отдельных секций соединённых между собой стеклянным переходом. В первом отсеке располагается выставочный зал, значительная часть которого нависает над основной входной аллеей в парк и держится на двух мощных колоннах. Стены также дугообразно выгнуты и остеклены. Второй отсек состоит из кинозала, холла, книжного магазина и коридора с лестницей. Композиционно он делится на два больших объёма: закрытая часть с глухими стенами кинозала и вытянутая в плане часть с холлом, соединяющая два павильона первого этажа. Крыши второго этажа в крайних угловых точках дугообразно изогнуты наверх, что придаёт больший динамизм и пластичность общему объёмному решению здания.
Возможно несколько различных схем движения посетителей по культурному центру. Такая планировка была выбрана не случайно. Одной из задач при проектировании было максимально заинтересовать потенциального посетителя происходящим в культурном центре. Через ленточное остекление стен из одной части здания хорошо просматривается другая часть. Это создаёт ощущение перетекающего пространства и лёгкости архитектурной композиции.
Конструктивное решение здания.
Здание культурно-развлекательного комплекса представляет собой лёгкий двухэтажный павильон с большим количеством остекленных поверхностей. В связи с этим была выбрана каркасная конструкция здания. Основой здания является металлический каркас, заполненный сендвич-панелями и ленточным остеклением. Такая конструкция выбрана не случайно. Во-первых, она позволяет достаточно легко и быстро построить здание. Во-вторых, каркасная конструкция даёт большую свободу при проектировании объёмного решения здания: при помощи каркасной системы можно построить значительно более сложные по форме конструкции, чем при использовании традиционных методов строительства. Кроме того, каркасные дома имеют сравнительно небольшой вес, поэтому отпадает необходимость в сооружении громоздких фундаментов.
Второй этаж имеет несколько выступающих элементов, в связи с чем возникла необходимость в установке опорных колонн. Выставочный зал второго этажа является своеобразной аркой входа в парк (под ним проходит основная аллея), выступая от стены первого этажа почти на 20 м. В связи с этим для укрепления конструкции под полом выставочного зала расположили изогнутые по горизонтали длинные металлические фермы, с одной стороны опирающиеся на перекрытие первого этажа, с другой – на опорные колонны. Подобная конструкция несколько меньших размеров предполагается и для укрепления выступающей части кинозала.
Как уже говорилось выше, металлический каркас культурного центра заполнен сэндвич-панелями и ленточным остеклением. Для наружной отделки использованы композитные панели из алюкобонда.
Ленточное остекление используется в выставочных залах проекта и кафе для создания эффекта воздушности и открытости пространства. Характерные для конструктивизма окна, примыкающие одно к другому почти без разграничивающих промежутков объединены на фасадах в протяженные полосы. Для предотвращения перегрева помещение в тёплое время года предусмотрена система крепления рулонных штор, которые могут опускаться при необходимости.
Выставочные залы.
В настоящее время актуальной тенденцией является создание на базе музеев и выставок многофункциональных, универсальных центров искусств, которые включают в свой состав музейно-выставочные, клубные и досугово-развлекательные помещения, школы искусств, медиатеки, что и представлено в данном проекте.
Основой образного решения выставочных залов культурного центра, как и для образного решения здания в целом послужило творчество советских конструктивистов В.Татлина и А.Родченко. Несмотря на явный отсыл к конструктивизму в планировке и внутреннем оформлении залов, пространство легко адаптируется для экспонирования работ любых других художественных направлений, а также для проведения различных промышленных, рекламных выставок и т.д.
Выставочный зал на первом этаже имеет в дугообразную плане перегородку, которая является центральной осью помещения. Вертикальная конструкция в центре зала разделяет помещение на 2 части, с обоих сторон имеются проходы. Тем самым обеспечивается круговое движение посетителей, для более упорядоченного осмотра экспозиции. К центральной вертикальной перегородке с обоих сторон крепятся выставочные стенды и подиумы. В левом верхнем углу зала расположена отдельная затемнённая зона, ограниченная с трёх сторон лёгкими перегородками для демонстрации различных видео-инсталляций и видео-презентаций. Также эта зона может быть использована для проведения мастер-классов. Осевая композиция зала поддержана на потолке гипсокартоновыми конструкциями, в которые вмонтированы светильники. Также к потолочной конструкции могут крепиться троссы для подвески различных объёмных арт-объектов и т.д. Дугообразный рисунок полов, чередование напольных покрытий (наливных полов и ламината) “подсказывают” направление движения посетителям и подчеркивают общий динамизм планировочного решения зала.
По П-образной лестнице из первого выставочного зала мы можем подняться во второй зал. Выставочный зал на втором этаже также имеет осевую композицию, но отличается ещё большей лёгкостью, динамичностью и мобильностью. По всей длине зала размещена изогнутая конструкция, к которой крепятся подиумы и выставочные стенды. Центральная осевая конструкция повторяется на полу и потолке. По краям к ней прикреплены металлические профили, служащие своеобразными рельсами, по которым могут сдвигаться выставочные стенды и подиумы. В промежутках между двумя частями конструкции возможна вставка вертикальных стендов, которые можно перемещать для создания необходимой экспозиции. В середине зала нижняя часть выставочной конструкции прерывается в двух местах для прохода посетителей. Образовавшийся “остров” может служить для демонстрации какого-либо ключевого экспоната выставки и стать своеобразным композиционным центром выставки.
Подвижная конструкция для крепления выставочных стендов и подиумов во втором зале второго даёт возможность очень быстро монтировать и демонтировать практические любые экспозиции.
Кроме того, в зале вдоль остеклённых стен размещены подиумы с клумбами, небольшими газонами и декоративными растениями. Это добавляет жёсткой геометричности конструктивистких форм выставочных конструкций некой теплоты и человечности и помогает созданию необычного и запоминающегося художественного образа выставки. Кроме того, благодаря инфракрасному отоплению зала и подогреву полов, растения остаются зелёными круглый год. На фоне долгого монохромного зимнего пейзажа за стеклянными стенами зала яркая зелень растений может благотворно влиять на настроение посетителей. К тому же, поскольку отсек с выставочным залом является и своеобразными “воротами” в парк (под ним проходит центральная аллея), озеленение, хорошо видное снаружи станет ярким акцентом не только интерьера, но и экстерьера, особенно в зимнее время.
Перегородки между помещениями, выставочные стенды в залах, подиумы, а также подвесные конструкции на потолках изготовлены из гипсокартона.
Кафе.
Включение кафе в планировку культурного центра не случайно. Во-первых, в близи парка на данный момент нет ни одного пункта общественного питания. В связи с планами развития парковой зоны “Динамо” наличие таких мест катастрофически необходимо. Во-вторых, интерес большей части посетителей к кафе будет неизменно более высок, чем к выставкам и другим культурным мероприятиям. Ввиду перетекающей планировки здания и соединения через лестницы и переходы всех помещений здания у потенциального посетителя, после посещения кафе может возникнуть желание посетить выставки или кинотеатр. Это может способствовать повышению общего культурного уровня населения. Кроме того, в кафе предполагается небольшая сцена, где могут проводиться различные концерты и другие мероприятия.
В плане кафе представляет собой вытянутое помещение с остеклёнными, дугообразно изогнутыми стенами. В правой части зала недалеко от входа располагается лестница, соединяющая кафе с кинозалом и выставочными залами. Вдоль лестницы размещена небольшая барная стойка и несколько столиков около остеклённой стены главного фасада. Под лестницей находится сцена, которую также можно видеть со второго этажа через небольшой полукруглый атриум. Непосредственно у входа слева расположен гардероб для посетителей кафе.
В основной части зала кафе размещены двух- и четырёхместные столики и барная стойка. Вдоль левой остеклённой стены расположены две диванные группы с видом на освещаемый проход между павильонами и на выставочный зал. Также имеется выход к санузлам для посетителей и к доготовочной для обслуживающего персонала.
Общая планировка кафе также продолжает дугообразную композицию здания в целом. Пол при помощи крамогранитной плитки и наливных полов разных цветов разделён на несколько зон. Зонирование помещения поддержано и на потолках подвесными гипсокартоновыми конструкциями с подсветкой. Цветовая гамма достаточно яркая и контрастная: используется красный, салатный, жёлтый в сочетании с серым, белым и чёрным. На контрасте со спокойной цветовой гаммой фасадов и выставочного зала на первом этаже кафе становится своеобразным цветовым акцентом всей объёмно-планировочной композиции здания.
Холл второго этажа и книжный магазин
Холл второго этажа является своеобразным связующим звеном между основными помещениями культурного центра. Через него посетитель может попасть из кафе в кинозал, из выставочных залов в кафе и т.д. Также здесь расположена билетная касса в кинотеатр, гардероб, зона отдыха для ожидающих киносеанса, небольшой магазин печатной и сувенирной продукции.
Кроме того здесь возможно размещение отдельных выставочных экспонатов, информационных стендов, декоративных растений. Также вдоль перил атриума у лестничной площадки хорошо видна сцена в кафе на первом этаже. Отсюда посетители культурного центра могут посмотреть выступления музыкантов, если нет желания идти в кафе или просто нет свободных столиков, что немаловажно при проведении концертов, пользующихся популярностью публики.
Кинозал
Кинозал является важной частью в проекте культурного центра. В нашем городе значительно увеличилось количество кинозалов за счёт размещения их на территории новых торговых центров. Как мы видим, идея включения кинотеатра в комплекс с другими помещениями, а не как самостоятельного объекта, достаточно актуальна и востребована. Ввиду небольшого размера и вместимости (60 мест), а также общей направленности культурного центра, спроектированный кинозал рассчитан на показ малобюджетных и арт-хаусных фильмов, а также проведения различных образовательных лекций, мастер-классов и презентаций.
Образное решение кинозала выполнено в рамках общего объёмно-планировочного решения проекта. На потолках использованы дугообразные перфорированные акустические панели с подсветкой. На стенах также использованы акустические панели, по форме гармонирующие со слегка изогнутыми в плане стенами кинозала.
Освещение и отопление
Освещение в интерьере играет немаловажную роль. Правильно подобранные и расположенные светильники подчеркнут выгодные стороны интерьера, объединят пространство или, наоборот, разделят его на зоны. Грамотное мягкое освещение расслабляет и располагает к отдыху.
В здании культурного центра использованы различные типы светильников: точечные, галогенные, прожекторы на струне около сцены, отдельные люстры над столами в кафе, неоновая подсветка потолков в кинозале и холле, выставочных подиумов и т.д. Возможно несколько разных схем освещения выставочных залов в зависимости от экспозиции для выделения основных экспонатов и затемнения неиспользуемых участков.
Так как в здании культурного центра очень большая площадь остеклённых поверхностей и достаточно небольшая толщина стен немаловажную роль играет отопление. Основной обогревательной системой здания было выбрано инфракрасное отопление. Также в тамбурах предполагается установка тепловых пушек.
Таким образом, благодаря системе отопления и теплоизоляции ограждений здание культурного может функционировать круглогодично, что в свою очередь будет способствовать популярности парка “Динамо” не только в теплое время года, но и зимой.
Заключение
Для достижения поставленных целей и задач была проведена большая исследовательская работа – это изучение аналогов в архитектуре и дизайне, анализ литературы с содержанием строительных норм и правил, требований к планировке, исследование рынка строительных материалов применяемых в отделке фасадов и интерьеров. Особое внимание было уделено созданию единого образа интерьера и экстерьера проекта, выполненного с элементами стиля конструктивизм, цветовому решению, характерному выбранному стилю и тематики заведения. Гармоничное и органичное размещение здание на входе в парк «Динамо», создает своеобразные «входные ворота» в парк, привлекая отдыхающих для посещения Культурного центра.
В конечном итоге было спроектировано двухэтажное здание на основе каркасной системы, с использованием фасадов из сэндвич-панелей, ленточного остекления, разработана прилегающая территория. Многофункциональный павильон, актуальная единица современной архитектуры, включает в себя два выставочных зала, кинотеатр, кафе и книжный магазин. В процессе работы над проектом была решена задача размещения в здании нескольких разных по функциональному назначению помещений с учетом основных норм и правил. На мой взгляд, разработанная дизайн-концепция достаточно актуальна и может быть интересна для реализации в рамках общего благоустройства и реконструкции парка “Динамо” в городе Воронеже.
О себе:
Астапченко Егор Юрьевич.
1985г.р. живу в г.Воронеже,
в 2006г. закончил отделение “Дизайн” Воронежского художественного училища
в 2012г. закончил отделение “Дизайн среды” Факультета искусств и художественного образования ВГПУ
работаю в области дизайна и архитектуры, занимаюсь различными художественными проектами, участиник различных художественных, дизайнерских и архитектурных конкурсов и выставок в Воронеже, Москве и Перми.
контакты:
тел: +7 950 751 26 81
e-mail: egor.astapche@mail.ru
Работа Астапченко Егора опубликована
Источник: www.arhinovosti.ru.

















Очень хороший проект. Не могу конечно оценить все технические части..не владею еще этими знаниями..но его эстетическая части мне понравилась.Удачи