Конкурсная работа Захарова Николая. Дизайн-проект входной группы Театра юного зрителя. Омск, Россия.
Представляем архиконкурсную работу номер 170. Студент 4 курса Омского государственного педагогического университета Николай Захаров разработал дизайн-проект входной группы Театра юного зрителя. Молодой архитектор постарался вдохнуть новую жизнь в старое здание. Оценить проект можно в наших группах в социальных сетях.
Номинация: Архитектура
Театр юного зрителя – это драматический театр, в котором наряду с хорошими спектаклями классического репертуара идут яркие, незабываемые и роскошные спектакли. Создан в 1937 году по инициативе городских детских и молодежных организаций при поддержке учителей и деятелей искусства города. В 1967 году город построил для театра специальное здание, в котором ТЮЗ работает поныне. За 67 лет существования театра на его сцене поставлено более 410 спектаклей.
Здание изначально выглядело непривлекательно. Но в данный момент театр юного зрителя находится в плачевном состоянии. И совершенно не вписывается в городское окружение. Облезлые и расписанные стены, завешенные окна на фасаде, беспорядочные кусты у входа и растущее дерево в центре здания, закрывающее крышу театра. Козырёк входной группы совершенно не представляет никакого интереса и не несёт в себе театрального образа. И мало чем могут помочь скульптуры из металла и разноцветные флажки, расположенные у входа в здание.
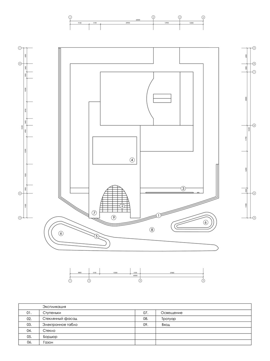
Эскизное исполнение входной группы театра позволило лучше представить проект и определить его концепцию. В концепции был заложен образ театральной сцены, нависающий над прохожими стеклянный фасад, зеркально отражающий в себе людей приближающихся к театру, для усиления театрального эффекта и ощущения нахождения себя в театре, даже не входя в него.
Входная группа выполнена по всем эргономическим требованием. В ней предусмотрено освещения территории театра, что полностью отсутствует в существующем здании. Данное введение способно значительно увеличить количество посетителей в тёмное время суток и своим свечением украсить городскую панораму вечернего города. На фасаде также предусмотрено электронное табло с расписанием сеансов, видное на большом расстоянии. Благодаря этим введениям театр приобретает максимально новый и современный образ.
С изменением формы фасада, последовало и изменение боковых окон театра. Кроме этого полностью застеклён внутренний двор театра, что позволяет сохранять приемлемую температуру внутри помещения. Старые ступеньки были также заменены, что позволило увеличить пространство вокруг здания. Места кустарники и произведений монументально декоративного искусства заняли стриженый газон и высокие длинные бордюры, использовать которые можно в качестве сидения – более долговечная и надёжная альтернатива лавочкам и скамейкам.
О себе:
Захаров Николай.
Студент 4 курса. ОМГПУ (Омский государственный педагогический университет). Институт искусств. Специальность: Дизайн среды.
E-mail: nikolai-z-design@yandex.ru
VK: http://vk.com/id22411742
Работа Захарова Николая опубликована
Источник: www.arhinovosti.ru.
















