Конкурсная работа Мурзиной Марии. Реконструкция корпуса физико-технического факультета и благоустройство прилегающей территории. Димитровград, Россия.
153-ей участницей Архиконкурса 2012 становится Мария Мурзина, выпускница Димитровградского инженерно-технологического института (филиал Национального исследовательского ядерного университета «МИФИ») по специальности дизайн. Ее дипломный проект посвящен реконструкции третьего корпуса ДИТИ НИЯУ МИФИ, полностью отведенного под физико-технический факультет, а также благоустройству прилегающей территории. Отдать свой голос за работу Марии в предварительном голосовании можно в социальных сетях.
Номинация: Свободная тема
В Димитровграде реализуется проект мирового уровня – центр медицинской радиологии. В связи с этим необходима подготовка новых квалифицированных кадров. Для этого в нашем городе был открыт филиал НИЯУ МИФИ. Объект проектирования – третий корпус ДИТИ НИЯУ МИФИ, который полностью отвели под физико-технический факультет.
Концепция связана с темой футуристического, научного будущего, высоких разработок и физикой. За основу художественного образа был взят космический дизайн, где умные машины помогают человеку добиться небывалых высот в науке и жизни. Так, например, дорожки и площадки с цветниками на плане похожи на созвездия или взлётные площадки, а оборудование и средовые объекты – на звездолёты и фантастические космические станции.
Однако, несмотря на кажущуюся агрессивность темы (ядерная физика, роботы, механизация) главной задачей стала разработка уникального пространства с «дружелюбной» атмосферой, уютной и удобной как для научных сотрудников, так и для студентов.
Новую планировку территории университета можно разделить на 4 зоны:
-зона активного отдыха состоит из спортивных площадок и двух зрительских трибун, с которых удобно наблюдать за любой спорт площадкой.

Кресла трибун выполнены в виде удобных ступеней разной величины, на них можно присесть или облокотится спиной.
-зона тихого отдыха предназначена для прогулок и созерцания природы и духовного отдыха, на месте пустырей появились уютные бионические беседки и цветники.
-зона парковки расположилась ближе к проезжей части и равноудалена от двух основных входов. Она отделена от зоны «тихого отдыха» стриженым кустарником боярышника, который имеет не только эстетическое значение, но и функциональное – звукоизоляция и естественный барьер между зонами.
-парадная зона самая красивая и праздничная, на площади университета возможно проведение смотров, парадов и праздников для студентов. Дорожки в этой зоне украшены бордюром из медоносных многолетних цветов или низкорослых декоративных кустарников. Рядом с площадкой перед университетом расположен пост охраны с автоматизированным шлагбаумом. Этот объект необходим для контроля над несанкционированными парковками.
Ещё на территории присутствуют сооружения служебно-технического обслуживания, а именно две трансформаторные подстанции.
Фасады университета и общежития имеют плавные линии, скруглённые углы, огромные окна, похожие на иллюминаторы фантастического космического звездолёта.
Рожки – антенны, помимо эстетической функции в создании инопланетного образа, имеют практическое значение – связь и интернет, которая осуществляется через спутник. Так же, они вносят нотку юмора в строгий чёрно-белый экстерьер. Запоминающаяся пластика здания, эффектный объем – все это создает архитектурную визитку физико-технического факультета, которая сразу обращает на себя внимание. Это здание «разрушает» шаблонные представления о физике, как о скучной и сложной науке.
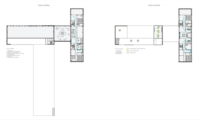
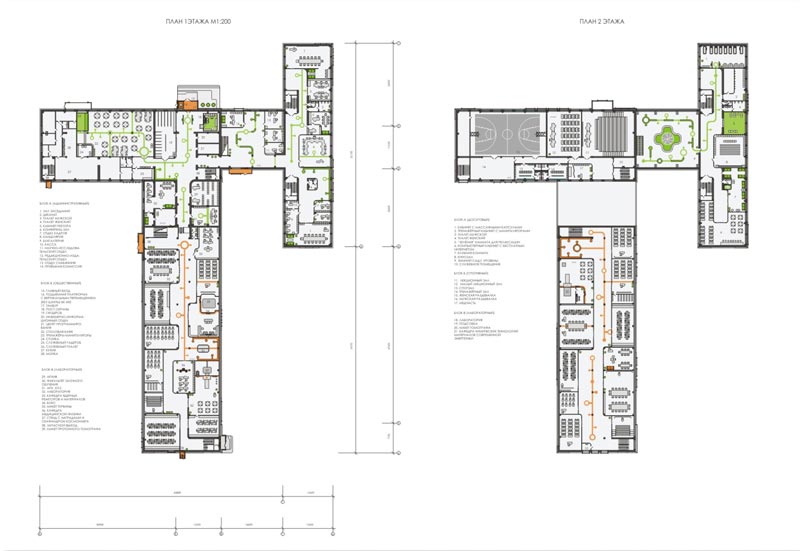
Интерьер корпуса – выполнен в той же космической стилистике. Каждый этаж разделён на блоки как в космическом корабле, каждый блок отвечает определенной функции и имеет свою цветовую гамму, при такой планировке людям легко ориентироваться в здании. На полу здания появилась специальная разметка, цвета которой соответствуют определённому блоку:
- общественный, административный и досуговый блоки – зелёный,
-учебный блок – голубой,
-лабораторный блок – оранжевый.
Особо следует отметить развлекательный блок на 2 этаже.
Правильному досугу студента уделено большое внимание. Появился оборудованный кинозал, с научным видеопрокатом и автоматизированный массажный кабинет. Пройти в него можно только по специальной карте отличника. Этот кабинет является своего рода поощрением для прилежно учащихся студентов и их преподавателей. Клубная комната предназначена для посиделок или неофициальных конференций, так же там находится шуточная кнопка запуска преподавателя в космос. Кроме этого на 2 этаже спроектирован зимний сад, в центре которого цветёт дерево-олицетворение знаний.
В столовой аппарат с манипуляторами (АМ) был спроектирован как специальный тренажёр для студентов.
Аналогом для создания этого устройства послужил стандартный автомат с мягкими игрушками, где с помощью рычага можно было управлять хватательным щупом и доставать приз. Заменив рычаг манипуляторами из лаборатории, обучение взаимодействию со сложной техникой превратилось в игру, а поощрительным призом является пирожки или другая еда.
В кабинетах лабораторного блока расположены макеты протонного томографа, медицинского оборудования и боксов с манипуляторами.
В учебном блоке для культурного развития работников и студентов есть «читальня», иными словами библиотека, где можно спокойно почитать за удобным столиком.
В итоге перед студентами откроется новый мир – планета физики. А здание-это космический корабль будущего, который комфортно доставит к знаниям. Я надеюсь, что в будущем появятся подобные учебные заведения, тогда обучение будет проходить интереснее и увлекательнее.
О себе:
Мурзина Мария Николаевна.
Ульяновская обл., г. Димитровград.
В 2012г. Закончила Димитровградский инженерно-технологический институт – филиал Национального исследовательского ядерного университета «МИФИ» (ДИТИ НИЯУ МИФИ) по специальности дизайн.
Тел. 89378707688
Работа Мурзиной Марии опубликована
Источник: www.arhinovosti.ru.





















