Коттедж от Chris Elliott Architects. Сидней, Австралия.
На берегу океана в Сиднее, Австралия, появился белый коттедж, чем-то напоминающий величественный корабль. Строение, которое стремится к бескрайним водам, было спроектировано специалистами из архитектурной компании Chris Elliott Architects. Здорово, наверное, жить в таком частном «лайнере» под убаюкивающие песни волн.
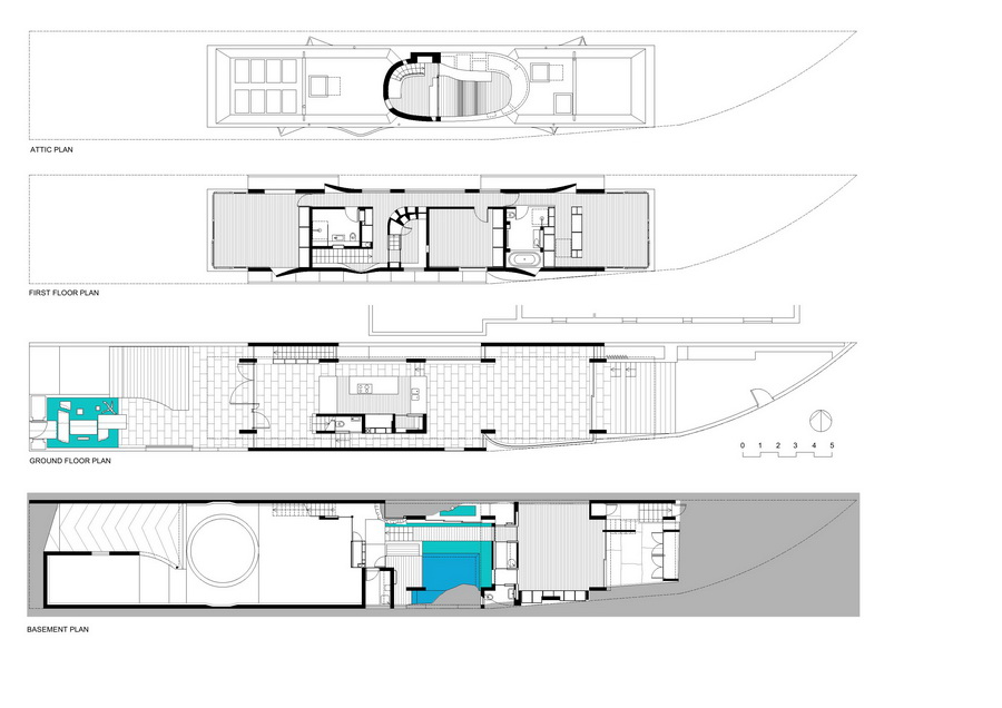
После бесчисленного количества набросков и размышлений было решено не бороться с особенностями выделенного под строительство узкого участка, а взаимодействовать с ними конструктивно, превращая их в положительные стороны проекта.
На уровне концепции (а затем и на практике) было решено сделать первый этаж достаточно открытым с помощью остекления, чтобы «впустить» природу в дом. Пространство данного этажа разделено цельными стенами только там, где это действительно необходимо.
Подземный уровень был организован в виде своего рода пещеры с водой, камнями и соответствующим освещением. При создании этого уровня была удалена не вся каменная порода, на которой стоит дом, поэтому, например, в бассейне можно увидеть большой кусок скалистой породы.
Второй этаж был отведён под личное пространство, поэтому он был сделан более закрытым, чем первый этаж. Тем не менее, спальня была полностью остеклена, чтобы обеспечить великолепный вид на океан. На крыше дома была организована терраса.
В статье использованы фотографии от Richard Glover и Vladimir Sitta.
Источник: www.arhinovosti.ru.

















