Конкурсная работа Червинского Максима. Теннисный клуб. Киев, Украина.
Следующая работа Архиконкурса 2012, которой был присвоен номер 75, была получена нами от Максима Червинского. Студент 4 курса Киевского национального университета строительства и архитектуры спроектировал Теннисный клуб для одной из живописных частей Киева, Украина. Если вы были бы не прочь помахать ракеткой возле величественного Днепра или просто любите теннис – проголосуйте за участника в социальных сетях.
Номинация: Архитектура
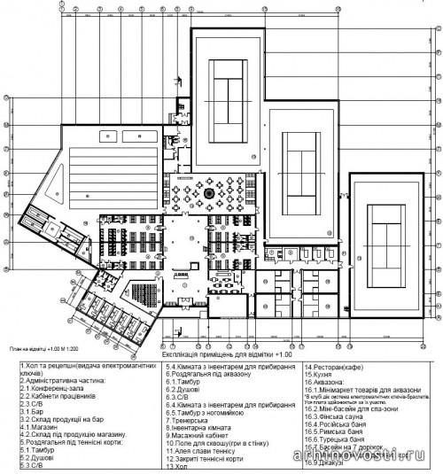
Заданием было предложено спроектировать теннисный клуб (участок для проектирования находится в живописном месте города Киева, недалеко от затоки Днепра).
Теннисный клуб включает в себя основные зоны:
-теннисные корты
-сквош-корты
-аква-зону с различными видами саун и бань, а также с джакузи и детским бассейном
Также в проекте присутствует ресторан и бар для клиентов и персонала клуба.
Особенности клуба:
-открытые теннисные корты (для занятий в теплое время года) находятся на крыше клуба, таким образом экономя место и делая клуб более компактным и удобным.
-эксплуатируемая крыша, которая следует современным тенденциям эко-архитектуры, а также позволяет использовать данный проект в условиях плотной городской застройки. Крыша, в данном случае, является мини-парком для посетителей клуба, где они могут отдохнуть в теплое время года.
-холл-атриум, на разных этажах которого находятся клубные помещения по интересам (в данном случае – клуб любителей тенниса), библиотеки и сборники периодики, зал для презентаций и конференц-зал, а также зал для проведения различных светских мероприятий и выставок. Из холла-атриума есть возможность выхода на различные уровни эксплуатируемой крыши, в том числе и на самую высокую ее часть – смотровую площадку.
О себе:
Червинский Максим
Образование: студент 4 курса Киевского национального университета строительства и архитектуры
Контактные данные:
Почта: mchervinskyi@gmail.com
Телефон: (063) 7479745
Skype: vankertis25
Работа Червинского Максима опубликована
Источник: www.arhinovosti.ru.










