Конкурсная работа Параскуна Демьяна. Медиакомплекс по телекинопроизводству. Астана, Казахстан.
Всё больше работ прибывает на Архиконкурс 2012. Следующим в нашем списке под номером 46 оказался Демьян Параскун. Выпускник Казахского Агротехнического Университета им. С.Сейфуллина прислал на конкурс проект Медиакомплекса по телекинопроизводству. Проект разрабатывался для города Астана, Казахстан. Давайте не будем оставлять участника без поддержки в социальных сетях!
Номинация: Архитектура
Объект предполагается расположить на скользящей оси векторов 2-х магистральных улиц, что позволит акцентировать визуальные оси, указывающие направление в город и наоборот. Кроме того, объект проектируется во взаимной функциональной связи с небольшим телецентром; образуемый тандем создает целый комплекс, основанный на близких дополняющих друг друга производственных процессах.
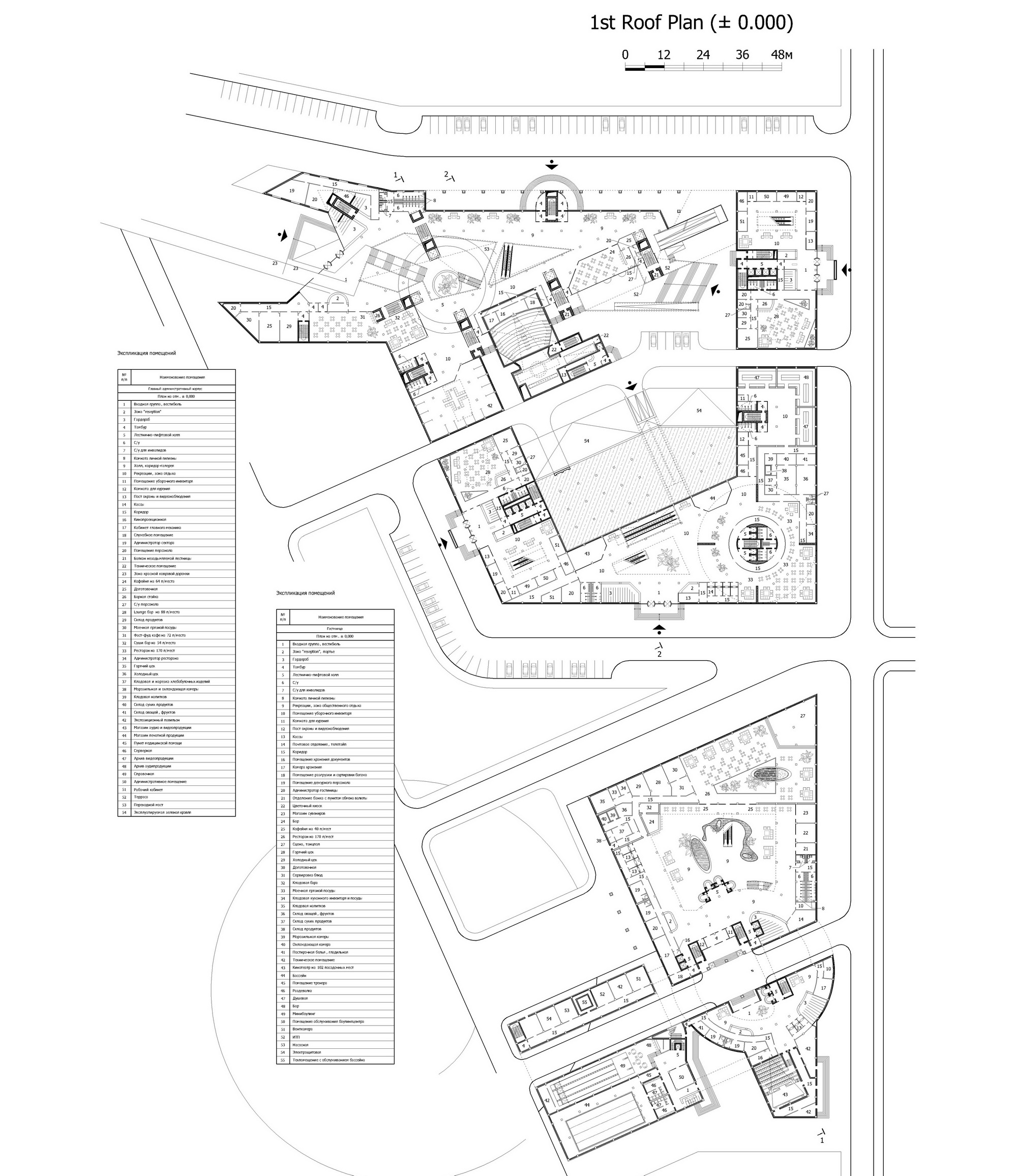
В структуре решения генплана намечена четкая осевая линия, которая проходит параллельно одним из основных плоскостей фасада главного административного здания киностудии и гостиничного блока, архитектура которых в свою очередь развивается в одном направлении, и берет свое начало на проектируемом пересечении ул. Кабанбай-Батыра и Сары-Арка. Данная линия, представленная протяженной парковой зоной с искусственным водоемом и амфитеатром, делит вес участок проектирования на 2 условные зоны: общественная зона – где расположен административно-технический корпус-блок киностудии и здание гостиницы и производственная зона – где располагаются съемочные павильоны, цеха подготовки съемок, обслуживание съемочных групп, декорационные мастерские, автобаза, склады и т.д.
Кинопроизводственный комплекс представляет собой некий синтез творческой, научной и технической работ, напрямую связанных между собой и имеющих единую цель – создание и выпуск готовой кинопродукции, а также подача полезной, по возможности последней, информации и внедрение новых цифровых технологий.
Экономические возможности производственной деятельности определяют количество съёмочных павильонов их техническое оснащение, наличие производственных структур на территории и общей площади кинокомплеса. Большое влияние на экономичность в проектировании киностудии оказывает рациональная планировка помещений, учитывая все процессы и этапы кинопроизводства. Современная киностудия по своим функциональным требованиям представляет вид «Киностудия – киногород», состоящая из отдельных структур производства, таких как: кино-видеопродукция, информация, развлечение, отдых.
Функционально зонирование продиктовано следующими факторами: взаимоувязка различных по функции служб; трассировка направлений движения – разделение потока посетителей, служащих (административного, творческого и технического персонала); особенности производственных функций.
Объем здания функционально разделен по принципу перехода от закрытого изолированного пространства к открытому природному, от общественного, предназначенного для широких масс посетителей, к зонам строго ограниченного доступа. Особенность функционального зонирования заключается в разделении отдельных секторов производства кинопродукции, а также TV-материала и соответствующих технологических и администра-тивно-обслуживающих схем в вертикальном направлении. В планарном же зонировании нет четкой границы между производственными помещениями и рекреационными зонами отдыха с живописной растительностью и искусственными водоемами, что создает наиболее комфортабельные условия для работы служащего персонала и посетителей центра.
Первые два этажа отданы под общественную зону, где расположены разнообразные атриумы, рекреационные, выставочные и экспозиционные зоны, зоны ресторана, кафе, лаундч баров, а так же универсальный зал, музей истории кинематографа, магазины готовой кинопродукции, административные помещения и т.д. Третий этаж блоков 2 и 5 используются для различных конференций, встреч, ведения переговоров, подписания договоров и т.д. Данный уровень имеет выход на зеленую эксплуатируемую кровлю. Этажи с 4 по 12 отданы производственному циклу и сопутствующим ему административно-техническим набором помещений.
Проект мультимедийного центра представляет собой единый объем, сочетающий в себе группу отдельных объемом, представленных как полноценными функциональными секторами-блоками, так и вертикальными несущими коммуникациями, заключенных в прямоугольное пространство.
Несущий остов главного здания мультимедийного комплекса представляет собой сложный комплексный каркас с комбинированными конструктивными системами.
Внутренний несущий остов образован монолитным железобетонным ядром, определяющимся за счет вертикальных коммуникаций, в виде отдельно стоящих блоков, имеющих общую монолитную структуру на первых 4-х этажах: это блоки 2, 3 и 4. Внешний несущий пояс представлен в виде дополнительных вертикальных коммуникаций (лестничные клетки, панорамные лифты), которые образованы монолитным каркасом, необходимыми для создания дополнительной несущей способности всей структуры. Вся конструктивная схема пятого блока опирается на сложную пространственную структуру – металлический каркас, представленную как единый несущий перекрывающий элемент, состоящий из отдельных, но взаимосвязанных между собой, конструктивных деталей.
Наклонные элементы, выходящие за основную плоскость фасадной части здания, ломаные линии различной конфигурации представляют собой пространственный каркас, тем самым, смягчая жесткую прямоугольную объемно-планировочную структуру здания. Этажи, выше зеленой эксплуатируемой кровли блока 5, представляют собой уплощенные цилиндрические формы, смещенные в разном порядке и абсолютно хаотично в плане относительно монолитного несущего ядра, создавая, таким образом, впечатление сложенных одна на другую бабин-катушек с кинопленкой, неотъемлемой атрибутикой кинопроизводства в целом. Ощущение дополняет спиралеобразная пространственная конструкция – экран, проходящая по внешнему контуру наружных ограждающих конструкций, имитирующая вид размотавшейся видеопленки.
О себе:
Параскун Демьян Васильевич (30.07.1986)
г. Астана (Республика Казахстан)
Образование: Казахский Агротехнический Университет им. С.Сейфуллина
Специальность: Архитектура
Контакты:
Тел.: 8 701 162 34 90
E-mail: Demyan_arch@mail.ru
Работа Параскуна Демьяна опубликована
Источник: www.arhinovosti.ru.
















uau vot eta rabota! awesome
Спасибо!!!