Конкурсная работа Султановой Натальи. Проект перепланировки 4-х комн. кв. в элитном жилом комплексе. Санкт-Петербург, Россия.
19-ая участница, Наталья Султанова, выпускница НТГПИ художественно-графического факультета и СПГУТиД кафедры Дизайна пространственной среды, решила принять участие в Архиконкурсе 2012 со своим дипломным проектом перепланировки 4-х комнатной квартиры в элитном жилом комплексе. Наталья профессионально занимается живописью и активно участвует во всевозможных выставках в России и за рубежом. Все желающие подержать работу Натальи могут уже сейчас проголосовать за нее в социальных сетях.
Номинация: Дизайн интерьера
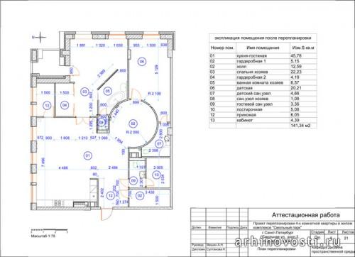
Вашему вниманию представляю проект перепланировки 4-х комнатной квартиры в элитном жилом комплексе. Расположена на 6 этаже 7-ми этажного дома. Общая S = 141,34 кв. м. Квартира перепланирована для семейной пары с ребёнком.
Для них необходимо спроектировать:
- 2 личные комнаты и наличие сан. узлов при них, а также гостевой санузел в прихожей;
- светлый кабинет для главы семьи (не предполагает визиты посетителей);
- гардеробная комната для хозяев;
- техническая комната (место стирки, сушки и глажки белья).
В существующей планировке квартиры несоразмерно жилым комнатам большая прихожая и коридор, общая S которых 35 кв. м при S жилых комнат всего 17-18 кв. м. каждая.
Другой ощутимый минус квартиры – 1 сан. узел на 3 личных комнаты, то есть на всю квартиру, площадь которой, напомню, 141 кв.м.
Мною была произведена перепланировка квартиры согласно строительным нормам и правилам с учётом планировки квартиры соседей этажом ниже.
В прихожей разместила место, чтобы присесть, консоль для ключей и гардеробную комнату для верхней одежды S=5 кв. м.
Гостевой сан. узел со входом в постирочную (стиральная и сушильная машина, модули для хранения со столешницей для глажки белья).
Из прихожей попадаем в гостиную, совмещённую с кухней. Общая S =45 кв. м. Мойка вынесена на кухонный остров. Плита у стены. Холодильник и духовой шкаф в встроены в мебель. Барная стойка на 3 места. Торжественный стол на 6 мест. 2 био-камина в гостиной и спальне хозяев.
Квартира не на последнем этаже.
Холл связывает гостиную и комнату ребёнка. Диаметр холла 4 м, S = 12 кв. м. Здесь телевизор и диван для просмотра. S личной комнаты ребенка = 20 кв. м. При ней санузел с раковиной, душем и унитазом.
Из гостиной попадаем в кабинет. По тех заданию это светлое изолированное рабочее место, не рассчитанное на посетителей. Поэтому кабинет не большой. Из гостиной попадаем также в личную комнату хозяев. S =28 кв. м. Яприняла решение разделить ванную от спальни перегородкой (чтобы попадал дневной свет). Комната расположена на месте бывшего коридора (не нарушает СНиП). Сан. узел раздельный. Унитаз в помещении 1200х800. Унитаз подключён к канализации через насос. До ближайшей фановой трубы около 3.5 метра.
Дизайн квартиры выполнен в сдержанной цветовой гамме.
Используемые в отделке материалы. Напольное покрытие в гостиной, спальне хозяев — массив. доска лиственница выбеленная. Детская — массив. доска дуб. Ванная хозяев — массив. доска тик.
О себе:
Султанова Наталья.
Закончила художественную школу.
- Нижнетагильский государственный педагогический институт (НТГПИ). Факультет: художественно-графический. Специальность: изобразительное искусство и черчение.
- Санкт-Петербургский государственный институт технологии и дизайна (СПГУТиД). Кафедра Дизайна пространственной среды. Профессиональная переподготовка. Специальность: Дизайнер жилых и общественных интерьеров.
Профессионально занимаюсь живописью. Участница выставок в России и за рубежом. Работы находятся в частных собраниях России, Великобритании, США, Италии, Канады и др. Прошла персональная выставка в галерее “Gascoigne”, Харрогит, Великобритания.
email: sultanov13@mail.ru
Работа Султановой Натальи опубликована
Источник: www.arhinovosti.ru.

















Красивый интерьер, выполненный со вкусом. Однако, я не думаю, что он будет актуальным в настоящее время. Нечто устаревшее. Сочетание бежевого, белого и шоколадного – это да, прекрасно. Но эти обои в крупные цветы – просто ужасны, на мой взгляд!..
Не, не прокатит в наше время точно..Показное богатство давно перестало быть актуальным.