Интерьер стоматологической клиники от Pedra Silva Architects. Лиссабон, Португалия.
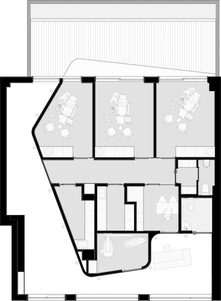
Дизайнеры из студии Pedra Silva Architects создали не совсем обычный интерьер для стоматологической клиники в Лиссабоне, Португалия. В основу своего проекта специалисты положили убеждение, что пространство подобных учреждений можно разделить на две зоны: зону, в которой проходит непосредственное лечение, и общественную зону.
В соответствии с этим делением было решено ещё более чётко разграничить разные функциональные зоны с помощью цвета.
Многие могут посчитать зону, в которой проходит непосредственное лечение, более важной для клиники, при этом, совсем не учитывая роль общественных зон.
В рамках данного проекта дизайнеры решили уделить общественной зоне не меньше внимания, чем зоне лечения.
В зоне лечения были организованы строгие, гигиеничные, профессиональные помещения, большинство элементов в которых белого цвета. Выбранный цвет должен успокаивать пациентов и вселять в них уверенность.
Общественная зона выступает в роли места для встреч и расслабления. В ней пациент должен отдалиться от ощущения пребывания в больнице.
Важным элементом зоны стала скруглённая стена, покрытая чёрной зеркальной мозаикой. Основным цветом общественного помещения стал черный.
Общая площадь помещений клиники составляет 149 метров квадратных.
В статье использованы фотографии от João Morgado.
Источник: www.arhinovosti.ru.









