Частная квартира от Дмитрия Жуйкова и Агеевы Арины.
Этот проект под названием hill boxes сделан архитекторами: Дмитрием Жуйковым и Агеевой Ариной для Нью-Йоркского заказчика Грема Хилла.
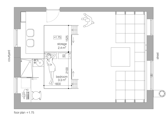
Площадь квартиры разбита на 6 зон:
1.Прихожая
2.Кухня
3.Гостиная
4.Кабинет
5.Санузел
6.Спальня.
Пространственно образующим элементом является двухуровневый объем,
в нижнем уровне объединяющий шкаф, гардероб, часть санузла и встроенную
кухню, а в верхнем – спальные места. Этот объем также формирует пространство
кухни, санузла кабинета отделяя их от гостинной.
В гостиной предусмотрена система из универсальных боксов, которые могут служить как хранилище для вещей, пуфики, табуретки, журнальные столики. Система боксов позволяет формировать пространства под разные нужды: лаундж, обеденный стол (на 12 человек), спальные места, либо полностью освобождать площадь, например для танцевальной вечиринки.
На внешней стороне здания (ориентированой на улицу) расположена низковетровая турбина для частичного энергоснабжения квартиры, она безопасна для окружающей среды и работает от слабого ветра.
Источник: www.arhinovosti.ru.













Уважаемые господа!
А почему не разместили 3D изображения “палатей” в квартире? Есть ли на них доп. вентиляция? Не будет ли мешать шум холодильника снизу? А вобщем-то, это возврат к палатям в русской избе, когда семеро по лавкам…. Не очень-то удобно, там даже на четвереньки не встанешь и головой об потолок все время бъёшься…
С уважением,
Елена